| INTERMEDIATE UNIT | |||
| STRUCTURE | Reinforced Concrete | ||
| WALL | Reinforced Concrete | ||
| ROOFING COVERING | Reinforced Concrete Slab / Metal Deck Roofing Sheet | ||
| ROOF FRAMING | Lightweight Steel Trusses | ||
| CEILING | Plaster Ceiling / Skim Coat | ||
| WINDOWS | Powder Coated | ||
| DOORS | Main Entrance Door | Decorative Door | |
| Others | Decorative Door | ||
| IRONMONGERY | Main Entrance Door | Lever Mortise Lockset | |
| Bedrooms, Laundry & Utility | Lever Handle Lockset | ||
| Bathrooms | Lever Handle Lockset (Privacy) | ||
| WALL FINISHES | Bathrooms | Tiles to Ceiling Level or Maximum 2.6m Height | |
| Kitchen (Behind Sink) | ≈ 1.7m Height | ||
| Others | Emulsion Paint | ||
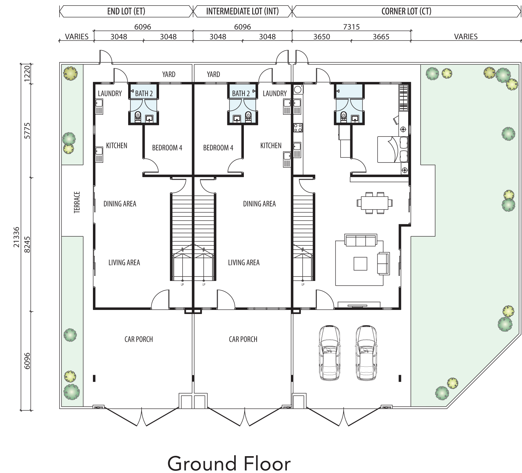
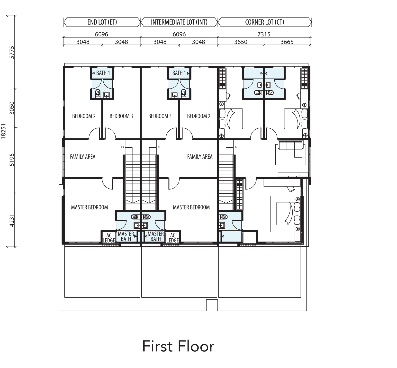
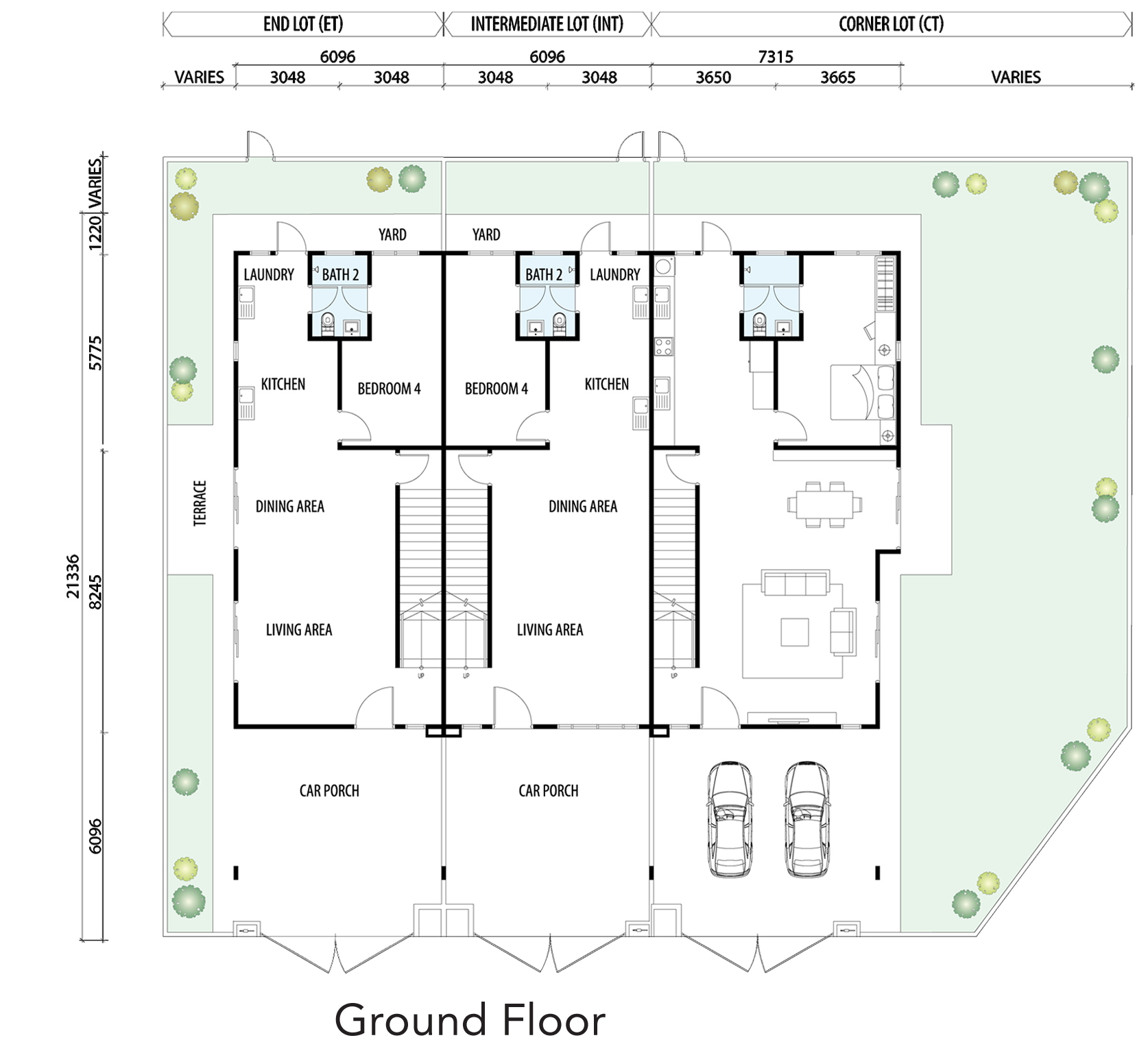
| FLOOR FINISHES | Living & Dining | Tiles | |
| Kitchen | Tiles | ||
| Laundry | Tiles | ||
| Bedrooms | Tiles | ||
| Bathrooms | Tiles | ||
| Utility | Tiles | ||
| Family | Tiles | ||
| Staircase | Tiles | ||
| Car Porch & Driveway | Concrete Imprint | ||
| A/C Ledge | Concrete Finish | ||
| Concrete Roof | Cement Render / Concrete Finish | ||
| Yard | Cement Render | ||
| TYPE A/A1 | TYPE B/B1 | ||
| SANITARY & PLUMBING FITTINGS | Wash Basin | 3 Nos. | 3 Nos. |
| Water Closet | 3 Nos. | 3 Nos. | |
| Shower Head | 3 Nos. | 3 Nos. | |
| Kitchen Sink | 2 Nos. | 2 Nos. | |
| ELECTRICAL INSTALLATIONS | Lighting Point | 22 Points | 22 Points |
| Power Point (13 AMP) | 15 Points | 15 Points | |
| Ceiling Fan Point | 7 Points | 7 Points | |
| Water Heater Power Point | 3 Points | 3 Points | |
| Air Cond. Power Point | 6 Points | 6 Points | |
| Swing Auto. Gate Point | 1 Point | 1 Point | |
| Door Bell Point | 1 Point | 1 Point | |
| Astro Point | 2 Point | 2 Point | |
| INTERNAL TELECOMMUNICATION TRUNKING AND CABLING |
Telephone Point | 2 Point | 2 Point |
| Fibre Optics Cabling c/w Fibre Wall Socket and Fire Termination Box |
1 Point | 1 Point | |
| FENCING | Front | ≈ 1.5m Height Wall c/w Mild Steel Gate | |
| Rear | ≈ 1.5m Height Wall c/w Mild Steel Gate |
Bayu Sutera (Precinct 2A) • No. Lesen Pemaju : 10613-46/08-2023/0638 (L) • Tempoh Sah : 26/08/2021 – 25/08/2023 • No. Permit Iklan : 10613-46/08-2023/0638 (P) • Tempoh Sah : 26/08/2021 – 25/08/2023 • Hakmilik Tanah : Kekal • Bebanan Tanah : Tiada • Pelan Bangunan Diluluskan oleh : Majlis Perbandaran Port Dickson • No. Rujukan : MPPD.431/36/2019/01 K.2(9) • Tarikh Dijangka Siap : Ogos 2023 • RTDT (TYPE B – CELYN II) – 255 Unit, RM 609,888 (Min) - RM 1,084,488 (Max) • Sekatan-Sekatan Kepentingan : Tanah yang diberimilik ini tidak boleh dipindahmilik, dipajak, digadai melainkan dengan kebenaran bertulis daripada Pihak Berkuasa Negeri. • All renderings contained in this advertisement are artist’s impressions only. The information contained herein is subject to change without notification as may be required by the relevant authorities or developer’s project consultant. Whilst every care is taken in providing this information, the owner, developer and manager cannot be held responsible for any variations. This is not a gated and guarded development. For avoidance of doubt on the specifications and development status, please always refer to the Sale and Purchase Agreement.
Bayu Sutera (Precinct 2B) • No. Lesen Pemaju : 10613-42/01-2023/007(L) • Tempoh Sah : 05/01/2021 – 04/01/2023 • No. Permit Iklan : 10613-42/01-2023/007 (P) • Tempoh Sah : 05/01/2021 – 04/01/2023 • Hakmilik Tanah : Kekal • Bebanan Tanah : Tiada • Pelan Bangunan Diluluskan oleh : Majlis Perbandaran Port Dickson • No. Rujukan : MPPD.431/36/2019/01 K.2(9) • Tarikh Dijangka Siap : November 2022 • RTDT (TYPE A - CELYN) - 156 Unit, RM 621,888 (Min) - RM 1,065,608 (Max) • RTDT (TYPE B - CELYN) - 169 Unit, RM 621,888 (Min) - RM 1,226,040 (Max) • Sekatan-Sekatan Kepentingan : Tanah yang diberimilik ini tidak boleh dipindahmilik, dipajak, digadai melainkan dengan kebenaran bertulis daripada Pihak Berkuasa Negeri. • All renderings contained in this advertisement are artist’s illustration only. The information contained herein is subject to change without notification as may be required by the relevant authorities or developer’s project consultant. Whilst every care is taken in providing this information, the owner, developer and manager cannot be held responsible for any variations. This is not a gated and guarded development. For avoidance of doubt on the specifications and development status, please always refer to the Sale and Purchase Agreement.